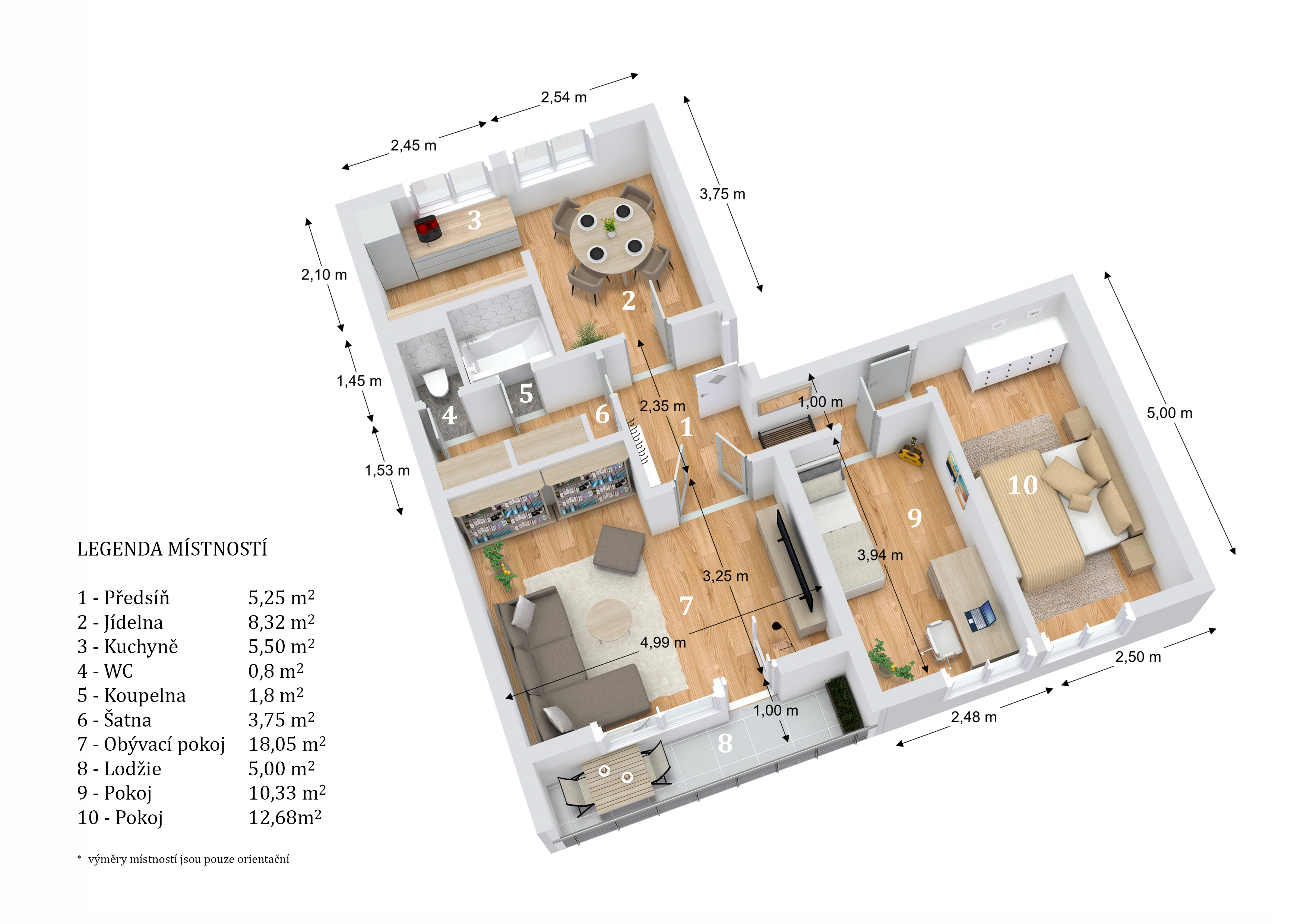
Investujte do svého budoucího domova nebo rozšiřte své portfolio nemovitostí s tímto prostorným bytem 3+1 o rozloze 72 m2, který se nachází v 8. patře cihlového domu s výtahem.
Tento byt nabízí skvělou příležitost pro rodiny i investory, kteří hledají nemovitost s potenciálem. Byt je v původním stavu, což znamená, že máte možnost přizpůsobit si interiér podle svých představ a potřeb.
Dispozice bytu je velmi praktická, s neprůchozími pokoji, které zajišťují soukromí a pohodlí pro všechny členy domácnosti. Vstup na balkon, který se nachází v obývacím pokoji, nabízí místo pro relaxaci a vychutnání si čerstvého vzduchu.
Klidná lokalita Prahy 4 - Záběhlice je ideální pro rodiny, které ocení blízkost přírody a možnost procházek, ale zároveň i dobrou dostupnost do centra města.
V okolí najdete veškerou občanskou vybavenost, včetně obchodů, škol a restaurací, což z této lokality činí atraktivní místo pro život. Nezmeškejte tuto jedinečnou příležitost a přetvořte tento byt na svůj vysněný domov nebo investici, která se vyplatí.
Byt je možné financovat hypotečním úvěrem se kterým vám rádi pomůžeme.
Kontaktujte nás pro více informací a domluvte si prohlídku ještě dnes!


Jsem profesionální realitní makléř, specializuji se na Středočeský kraj a Prahu, ale rád za vámi zajedu kamkoliv po České republice. Za sebou mám více jak 8 let praxe a velké množství prodaných nebo pronajatých domů, bytů i pozemků. Každý člověk je individuální, tudíž k němu i takto přistupuji a snažím se vyjít maximálně vstříc jeho požadavkům, je-li to jen trochu možné, ZÁZRAKY NEUMÍM A PROTO JE TAKÉ NESLIBUJI. Velice rád Vám pomohu prodat vaši nemovitost za nejvyšší možnou cenu.